首頁 > 天空BLOG > 天空Blog > 小坪數裝潢案例剖析-從小空間規劃到施工,直到裝潢總預算到分項價格

天空BLOG

小坪數裝潢案例剖析-從小空間規劃到施工,直到裝潢總預算到分項價格

分享到

【實用設計專欄】小坪數從平面圖開始 — 原格局的審視


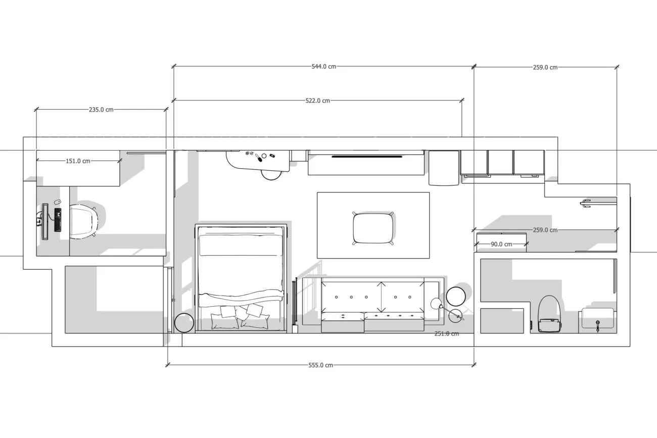
本案呈現小坪數常見問題,如單一走道動線過長,空間串聯造成通行壓力;廚房夾於客廳與工作區間,機能交錯易互相干擾;入口集中洗衣、浴室與收納,整體偏擁擠;沙發、書桌、電視牆共用牆面,缺乏清楚分區。整體空間利用高,但彈性與舒適度有限。

入口與鞋櫃

這是一張我依據屋主需要,在不改格局的狀況之下,所設計的第一版平面圖,小坪數的問題永遠是如此,製作鞋櫃還是偏狹窄,但又不可能不需要,在已經確定沒辦法狀況下,鞋櫃的設置是定局,所以這邊有一個小技巧,入口與鞋櫃出入動線口至少要有80CM,因為這是床、冰箱或設備能搬入的最窄“人體工學”的動線,如執意要做更長或更深鞋櫃,在小坪數空間裡是不適合的。


客廳及主臥

這個客廳格局連一個正常規格的沙發都放不進去,就算放入了,左右空間毫無動線,只能放兩個大單椅,但屋主希望能躺在沙發上看電視或睡覺,而主臥深度不足,床擺下去已經沒有動線,甚至連衣櫃都無法放入。


後方次臥

次臥有一個很長的廊道,小坪數原本就已經沒什麼空間,廊道卻又是吃掉空間的空間浪費區,這在空間已經無法多加利用的小坪數,廊道空間很“虧”啊!更不用說次臥功能了。

想跟我們聊聊嗎?點擊並聯絡我們吧!

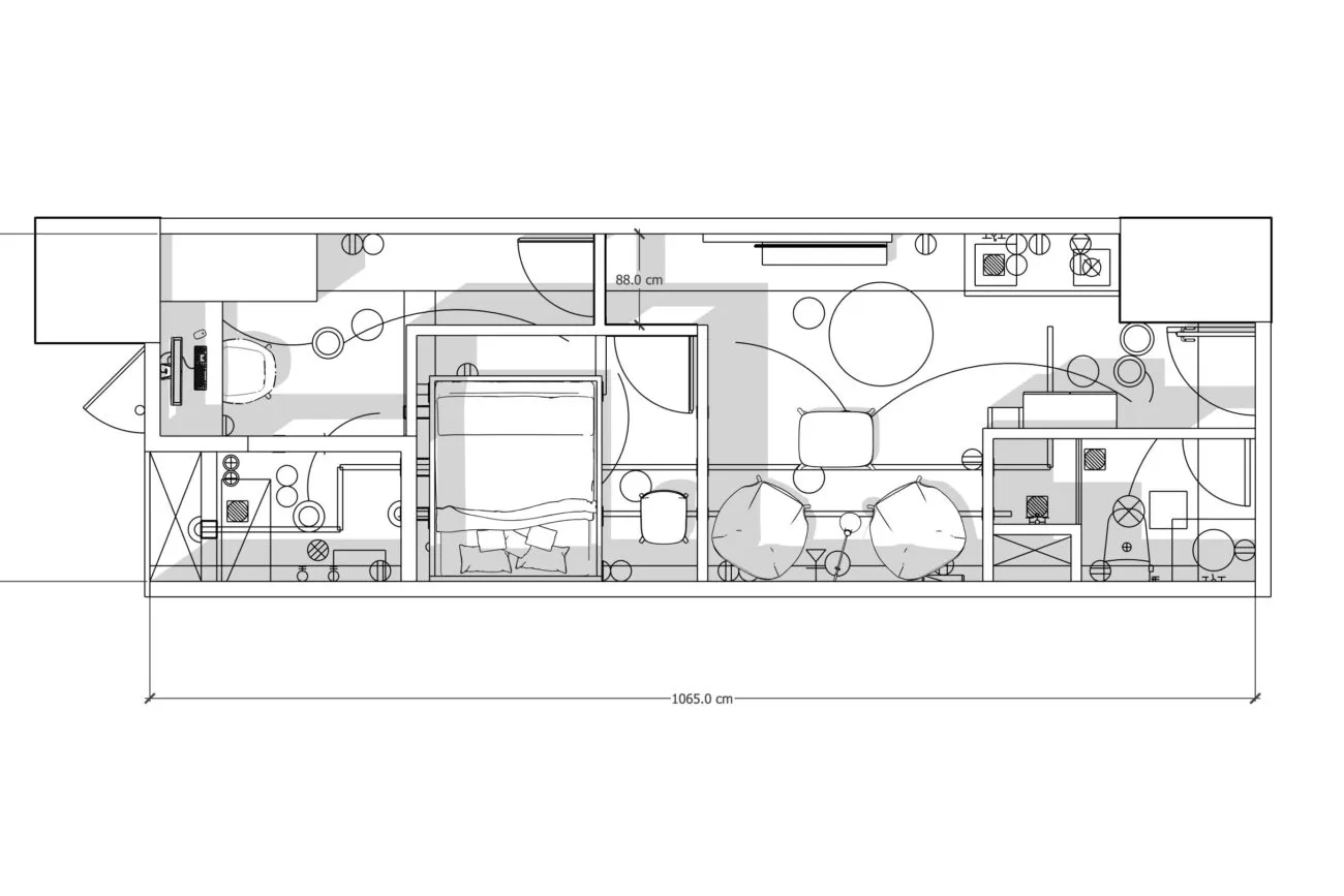
小坪數的空間規劃 — 新格局的規劃與執行

是的!我直接勸說屋主打掉隔間牆的規劃設計,於是我給她第二版的規劃,只要打掉L型的牆,用玻璃隔間阻隔,可以讓空間運用更靈活,且完全解決掉廊道的問題,並且可以把空間座島複合運用。



新格局的安排
 

很不囉唆的直接敲掉牆面,空間視覺變大,而且廊道不見,還可複合應用原來郎到讓出的空間,給予一個梳妝台,大沙發布但進去了,房間也不會小到動線不順,以及有壓迫感的問題,而另一個次臥本身就根本放不下什麼東西,就直接改成衣帽間吧,有沒有一種感覺坪數雖小,但很適合宜居的空間,但這樣的做法是要很有勇氣的,怎麼說呢?以下幾個重點,我來一一說明。


執行與成果說明

第一個重點,我們必須要了解屋主首要需求,此案屋主告訴我,打掉一個房間很掙扎,因為未來想賣時,以兩房為佳,這個問題超級實際,但我給予她一個方案,先做三片活動玻璃拉門,然後上隔間板要製作出來(影片會給更多說明,在下方!),之後如果想要賣掉房子,直接再製作一個隔間牆,一樣變成兩間房間。

我說屋主的需求很重要,要考慮到未來性這點是不能忽略的,那我以上的方案是不是人人都適用,那當然不是,如此案為例,因為屋主是單身,我才會以這個方向下去規劃,如果是兩個人居住,那又是另一個議題與方案重新擬定了。

如您對這樣的風格有興趣,除了 天空元素視覺空間設計 官網外,我們也非常歡迎如有任何問題,都可加入我們官方line「25分鐘免費讓您問清楚」,我們非常願意提供我們的專業且不藏私的來回答您任何問題。


小坪數裝潢質感提升 — 小豪宅質感的營造


既然解決了小坪數的空間及動線問題,那麼接下來是什麼呢,當然是裝修的質感與最重要的“功能設計”的營造囉,這樣才是完整的室內設計,您說對吧?!我們想要創造出獨特風格,又能高貴不貴,軟裝、家飾及氛圍感的營造非常重要,那麼就看我如何畫龍點睛了。

牆面-壁布的運用

我從來不建議用壁紙,我只推薦壁布,問我為什麼,原因很簡單,紙質類不好保養、易髒,且地震過後會因為牆壁的龜裂跟著裂開,然後壁紙無論是牆壁滲水或表面弄髒,都是不好處理的一個麻煩,然而壁布其實是纖維質,不但好保養,有韌度,用水擦拭便可,而如果是漆料的牆面,髒了就是髒了,必須要重刷。

斜面天花板的設計

梁是很多屋主與設計的痛,偏偏這個小坪數的最大粱又是在客廳處,逃不掉、避不了,所以我通常會設計斜角造型天花板(又或是弧型),但光這樣還是無法完全解決樑的“心理感”,所以我通常會創造“錯覺感”,就是在斜角處加上燈光或條燈,利用燈光的擴散感,減弱對於樑的不適感,並且創造出設計感,也強化出質感,只是燈光的瓦數、亮度很重要,燈光太強也會喧賓奪主,主光源跟次光源的劃分非常重要。

其他壁面板材與裝飾

一、客廳
這個小坪數空間利用世界地圖牆面延伸視覺感,搭配灰藍與米白色調營造出簡潔沉穩氛圍。L型沙發尺寸精準,適合小坪數使用,兼具休憩與接待機能。局部深藍跳色牆與藝術畫作平衡空間層次,使空間雖小卻不單調。玻璃拉門引入自然光,增添通透感。

二、房間
此空間透過玻璃隔間巧妙劃分臥室與客廳,保有獨立性同時維持整體通透感。臥室床頭採用大面木紋設計,簡約俐落且呼應地板色系,展現一致的視覺語彙。天花局部斜面與嵌燈設計,增加層次與光感變化。床架結合下方收納機能,對小宅來說更具實用性與空間效率。整體明亮開闊,富有現代質感。

想了解預算嗎?那麼我接續講下去。


小坪數的裝潢費用說明 — 從總預算到分項價格


自然購買小坪數是現今的趨勢,在少子化及房價越來越高的現今台灣市場,還有法規的嚴苛及健康建材的要求,另我們對生活品質的需要,這些都讓屋主對於價位上的考量更為要求,而我們 天空元素設計 所提供的報價是一個大方向的範圍,有更多需求,都可加入我們官方line「25分鐘免費讓您問清楚」

整體的設計可以在我們的,請點下方觀看影片,可以了解更多。

如何規劃小坪數空間|材質完全進化|空間改造大破解|兩人以內居住空間|室內設計

以下是這個小坪數的費用參考:

工程預算表:

一、拆除工程約 45,000 含搬運及清運
二、水電工程約 70,000 重新設置迴路及消防管線處理及燈具安裝
三、木作工程約 180,000 櫃體、電視牆、電視櫃、天花板及門組
四、全室油漆整平工程約 80,000 ICI 竹炭漆
五、木地板工程約 35,000 10mm 卡扣式地板
六、燈具設備約 25,000 LED燈具組
七、系統櫃工程約 85,000 鞋櫃、收納床組、背板、儲藏室衣櫃
八、台製鋁拉門約 30,000
九、壁布約 25,000
十、工程管理約 50,000
十一、設計費約 50,000
十二、清潔及廢料清運約 25,000 實際裝修坪數 12 坪

 

TOP